123 S Elwood Street

Forsyth, IL 62535

About this property

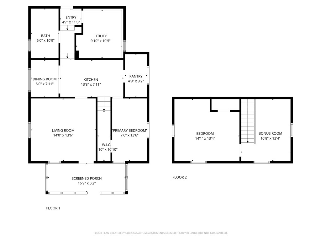
Charming 1.5-Story Home in the Desirable M/F School District! This beautifully updated home is perfectly locatedjust steps from the walking path, within walking distance to the elementary school and Decatur Christian School, and close to shopping and dining. Move right in with peace of mindwindows, HVAC, paint, water heater, roof, and insulation were all new in 2021! The kitchen appliances (also 2021) stay, making this home completely move-in ready. Featuring one bedroom on the main floor and another upstairs with an open loft-style space ideal for a home office, playroom, reading nook, or game area. The large backyard offers plenty of room for play, gardening, or outdoor entertaining. A wonderful blend of comfort, updates, and locationthis home is ready for you!

About this property

Charming 1.5-Story Home in the Desirable M/F School District! This beautifully updated home is perfectly locatedjust steps from the walking path, within walking distance to the elementary school and Decatur Christian School, and close to shopping and dining. Move right in with peace of mindwindows, HVAC, paint, water heater, roof, and insulation were all new in 2021! The kitchen appliances (also 2021) stay, making this home completely move-in ready. Featuring one bedroom on the main floor and another upstairs with an open loft-style space ideal for a home office, playroom, reading nook, or game area. The large backyard offers plenty of room for play, gardening, or outdoor entertaining. A wonderful blend of comfort, updates, and locationthis home is ready for you!

Features and Additional Information

Schedule a Tour
It's free and no obligation

Schedule a Private Showing

$124,900 Active
2 Bed(s)
1
Bath
1,128 sqft

Presented By Coldwell Banker Classic Real Estate

Agent Image
Get in touch today! Phone: 1-217-348-0191
Brokerage
Glenda Williamson Realty
1-217-875-8081
Curious to find out what your home is worth?
Get My Home's Worth arrow_forward

Area Information

| Macon County | Shaffers Add

$ 124,900
This listing is play_arrow 0.0% lower than the average in the area
$ 124,900 in the area
1,128 SqFt
This listing is play_arrow 0.0% smaller than the average in the area
1,128 SqFt in the area
$ 111 $/SqFt
This listing is play_arrow 0.0% less than the average in the area
$ 111 $/SqFt in the area
4 days on site
This listing is play_arrow 0.0% below the average in the area
4 days on site in the area

Schools in the Area

  • turned_in
    Elementary School
    Maroa Forsyth Dist 2
  • turned_in
    Middle School
    Maroa Forsyth Dist 2
  • turned_in
    High School
    Maroa Forsyth Dist 2

Want to See More Listings in the Area?

Listed By Bradley Godden
Brokerage: Glenda Williamson Realty

Schedule a Private Showing

It's free and no obligation

Have Questions? Contact
Coldwell Banker Classic Real Estate

By submitting, you agree to receive promotional texts and/or calls from Coldwell Banker Classic at the number provided. Message/data rates may apply. Consent is not a condition of purchase, and you can opt out anytime by replying STOP.
Real Estate Links Our Domains