435 E Dawson Road

Decatur, IL 62521

About this property

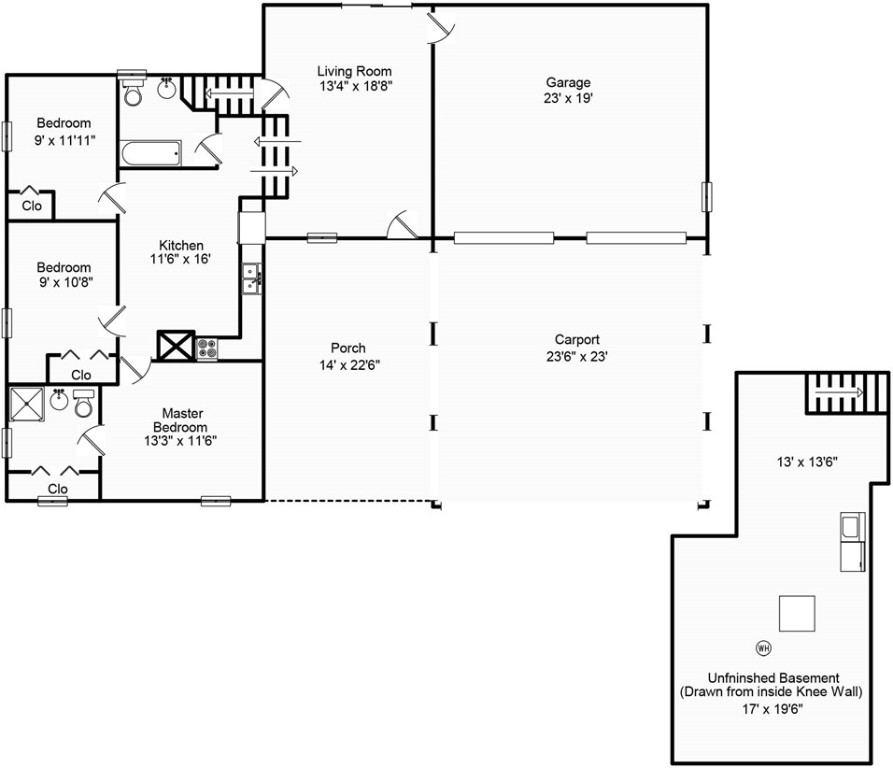
When you turn left on Dawson Road, you will see on the right a sign that says No Outlet. There is only 1 way in and 1 way out for this very private neighborhood. This maintenance free ranch with the vinyl siding and the metal roof has a back yard with a 6 ft. chain link fence. This is needed to keep the deer out of the back yard. The property backs up to the Macon County Conservation District. The property measures 109' x 421'. This 1 acre parcel has approximately 1/2 acre of thick timber that is contiguous to the MCCD. On the back side of home, there is a huge concrete patio perfect for outside entertaining. The front side of the home, there are 2 asphalt driveways. In front of the garage, there is a large carport for multiple car parking. The right side driveway is ideal for parking a camper or boat. The kitchen has been remodeled with a stove that has never been used. Most of the home has been updated with new drywall. Selling home in As Is condition due to it being an Estate.

About this property

When you turn left on Dawson Road, you will see on the right a sign that says No Outlet. There is only 1 way in and 1 way out for this very private neighborhood. This maintenance free ranch with the vinyl siding and the metal roof has a back yard with a 6 ft. chain link fence. This is needed to keep the deer out of the back yard. The property backs up to the Macon County Conservation District. The property measures 109' x 421'. This 1 acre parcel has approximately 1/2 acre of thick timber that is contiguous to the MCCD. On the back side of home, there is a huge concrete patio perfect for outside entertaining. The front side of the home, there are 2 asphalt driveways. In front of the garage, there is a large carport for multiple car parking. The right side driveway is ideal for parking a camper or boat. The kitchen has been remodeled with a stove that has never been used. Most of the home has been updated with new drywall. Selling home in As Is condition due to it being an Estate.

Features and Additional Information

Schedule a Tour
It's free and no obligation

Schedule a Private Showing

$185,000 Pending
3 Bed(s)
2
Baths
1,093 sqft

Presented By Coldwell Banker Classic Real Estate

Agent Image
Get in touch today! Phone: 1-217-348-0191
Brokerage
Brinkoetter REALTORS®
1-217-875-0555
Curious to find out what your home is worth?
Get My Home's Worth arrow_forward

Area Information

| Macon County |

$ 185,000
This listing is play_arrow 16.4% higher than the average in the area
$ 159,000 in the area
1,093 SqFt
This listing is play_arrow 23.6% smaller than the average in the area
1,431 SqFt in the area
$ 169 $/SqFt
This listing is play_arrow 52.1% more than the average in the area
$ 111 $/SqFt in the area
30 days on site
This listing is play_arrow 67.0% below the average in the area
91 days on site in the area

Schools in the Area

  • turned_in
    Elementary School
    Meridian
  • turned_in
    Middle School
    Meridian
  • turned_in
    High School
    Meridian

Want to See More Listings in the Area?

Listed By Joseph Doolin
Brokerage: Brinkoetter REALTORS®

Schedule a Private Showing

It's free and no obligation

Have Questions? Contact
Coldwell Banker Classic Real Estate

By submitting, you agree to receive promotional texts and/or calls from Coldwell Banker Classic at the number provided. Message/data rates may apply. Consent is not a condition of purchase, and you can opt out anytime by replying STOP.
Real Estate Links Our Domains